Mẫu thiết kế nhà phố 4 tầng với mặt tiền ấn tượng nhiều cây xanh
Thông tin chung Mẫu thiết kế nhà phố 4 tầng với mặt tiền ấn tượng nhiều cây xanh:
Địa điểm: Thành phố Vũng Tàu
Diện tích: 400m2
Tầng cao: 4 tầng
Chi phí: 4 tỷ đồng
Năm hoàn thành: 2021
Giới thiệu Mẫu thiết kế nhà phố 4 tầng với mặt tiền ấn tượng nhiều cây xanh:
Mẫu thiết kế nhà phố 4 tầng có diện tích 400m2 thuộc sở hữu của cặp vợ chồng 33 tuổi luôn mong muốn có một chốn bình yên để trở về sau mỗi ngày làm việc mệt mỏi. Để hiện thực hoá điều này, nhóm kiến trúc sư cùng gia chủ đã lựa chọn phương án thiết kế công trình với thật nhiều cây xanh và thông gió nhưng không kém phần hiện đại, tiện nghi.
Mẫu thiết kế nhà phố 4 tầng với mặt tiền ấn tượng nhiều cây xanh - Ngôi nhà với vẻ ngoài khác biệt đầy màu xanh
Với diện tích 400m2, bao gồm 4 tầng, mãu thiết kế nhà phố được thiết kế theo phong cách hiện đại cùng thông gió, ánh sáng và nhiều cây xanh. Để giải quyết đề bài về chốn bình yên, tách biệt với thế giới bên ngoài, ngay từ mặt tiền, ngôi nhà đã được bao phủ bởi hệ lam kết hợp cây xanh.
Mẫu thiết kế nhà phố 4 tầng với mặt tiền ấn tượng nhiều cây xanh - Mặt tiền không những đảm bảo sự riêng tư mà còn vô cùng sinh động, đẹp mắt
Mẫu thiết kế nhà phố 4 tầng với mặt tiền ấn tượng nhiều cây xanh - Thảm thực vật xanh tạo không khí tươi mát vào bên trong ngôi nhà
Mẫu thiết kế nhà phố 4 tầng với mặt tiền ấn tượng nhiều cây xanh - Không gian sinh hoạt chung
Mẫu thiết kế nhà phố 4 tầng với mặt tiền ấn tượng nhiều cây xanh - Phòng khách hiện đại mang màu sắc trang nhã
Giếng trời được bố trí ở trung tâm nhà xuyên suốt từ tầng 1 lên tầng thượng vừa mang ánh sáng vừa giúp điều hoà vi khí hậu. Tầng 1 bao gồm phòng khách, bếp, phòng ăn và sân sau thư giãn.
Mẫu thiết kế nhà phố 4 tầng với mặt tiền ấn tượng nhiều cây xanh - Toàn cảnh không gian phòng khách ở tầng 1
Mẫu thiết kế nhà phố 4 tầng với mặt tiền ấn tượng nhiều cây xanh -
Mẫu thiết kế nhà phố 4 tầng với mặt tiền ấn tượng nhiều cây xanh - Phòng ngủ Master rộng và thoáng
Toàn bộ tầng 2 là không gian dành cho phòng ngủ Master kết hợp với phòng thay đồ và phòng vệ sinh, được kết nối bằng một chiếc cầu kính có lối đi biệt lập bên trong.
Mẫu thiết kế nhà phố 4 tầng với mặt tiền ấn tượng nhiều cây xanh - Không gian gắn kết bên tỏng và bên ngoài nhưng vẫn đảm bảo sự riêng tư khi cần thiết
Mẫu thiết kế nhà phố 4 tầng với mặt tiền ấn tượng nhiều cây xanh - Góc thư giãn lý tưởng bên ngoài phòng ngủ
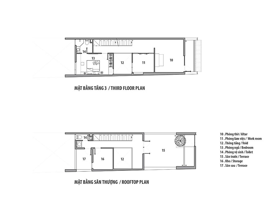
Tầng 3 bao gồm phòng ngủ của bé con, phòng làm việc và phòng thờ. Tầng thượng bố trí khu giặt, kho và sân trước để trồng rau. Tất cả các phòng đều có đầy đủ ánh sáng tự nhiên và thoáng khí nhờ các cửa sổ và hệ giếng trời lớn.
Mẫu thiết kế nhà phố 4 tầng với mặt tiền ấn tượng nhiều cây xanh - Phòng thay đồ được bố trí khoa học bên cạnh góc làm việc
Mẫu thiết kế nhà phố 4 tầng với mặt tiền ấn tượng nhiều cây xanh - Cầu kính kết nối giữa phòng ngủ và phòng thay đồ nằm dưới giếng trời
Mẫu thiết kế nhà phố 4 tầng với mặt tiền ấn tượng nhiều cây xanh - Phòng tắm được phân chia khu vực khô ướt nên luôn khô ráo, sạch sẽ
Với thiết kế hiện đại, sử dụng vật liệu đơn giản nhưng ấm cúng và quan trọng nhất là đưa được yếu tố xanh mát, thoáng đãng vào trong không gian sống, mẫu thiết kế nhà phố đã hoàn toàn làm hài lòng gia chủ. Đây cũng là ví dụ hay về thiết kế nhà phố bình yên, nhẹ nhàng mà gia chủ Việt có thể tham khảo và học hỏi.
Mẫu thiết kế nhà phố 4 tầng với mặt tiền ấn tượng nhiều cây xanh - Vườn rau sạch trên khu vực sân thượng
Mẫu thiết kế nhà phố 4 tầng với mặt tiền ấn tượng nhiều cây xanh - Mặt bằng tầng 1,2
Quý khách hàng có nhu cầu thiết kế nhà phố, nhà lô, nhà ống hãy liên hệ với chúng tôi để được tư vấn thiết kế một ngôi nhà đẹp theo phong cách riêng của mình. Xin liên hệ hotline: 08 8681 3838 hoặc 024 66884266 để gửi yêu cầu tư vấn cho chúng tôi.
Quý khách hàng có thể tham khảo các thiết kế nhà đẹp khác do nhadepdocdao thiết kế.


419679 737523Its rare knowledgeable folks within this subject, nevertheless, you seem like theres a lot more youre talking about! Thanks 870233
221819 252770I recognize there is undoubtedly an excellent deal of spam on this blog. Do you want aid cleansing them up? I may possibly help in between classes! 118262
62324 57926Some truly good stuff on this internet site , I it. 144454
323270 466691I truly got into this write-up. I located it to be intriguing and loaded with special points of interest. I like to read material that makes me feel. Thank you for writing this great content material. 835894
152288 347478I adore the appear of your site. I lately built mine and I was seeking for some design concepts and you gave me a few. May I ask you whether you developed the web site by youself? 352302
76219 531946Exploring in Yahoo I ultimately stumbled upon this website.Studying this info. 787920
577213 296792What a lovely weblog. I will undoubtedly be back. Please maintain writing! 675075
240942 667589I dugg some of you post as I thought they were handy quite beneficial 484516
97873 360481Thank you for the auspicious writeup. It in truth used to be a amusement account it. Glance complex to far more added agreeable from you! Even so, how could we be in contact? 67203
930844 584434hey there, your web site is low cost. We do thank you for function 753542
625142 1201Do you have a spam problem on this website; I also am a blogger, and I was wondering your situation; we have created some nice methods and we are looking to swap techniques with other folks, be sure to shoot me an email if interested. 99988
431851 75951Greetings! Quick question thats completely off subject. Do you know how to make your web site mobile friendly? My weblog looks weird when viewing from my iphone. Im trying to discover a template or plugin that may possibly be able to fix this dilemma. Should you have any recommendations, please share. Appreciate it! 846025
623341 238124I was searching at some of your weblog posts on this web site and I believe this internet website is real instructive! Maintain posting . 919082
762472 921197replica watches are incredible reproduction of original authentic swiss luxury time pieces. 775016
360263 206380Generally the New york Weight Loss diet is definitely less expensive and flexible staying on your diet scheme intended for measures however rapidly then duty keep a nutritious everyday life. weight loss 235
855140 86141Fantastic post, I conceive weblog owners should acquire a good deal from this internet blog its real user pleasant. 597694
390574 878999This sort of wanting to come to a difference in her or his lifestyle, initial normally Los angeles Excess weight weightloss scheme is a large running in as it reached that strive. weight loss 553745
186470 370716But yet another intelligent weblog! Completely cannot wait for a great deal more! 690825
292958 583792So, is this just for males, just for females, or is it for both sexes If it s not, then do girls want to do anything different to put on muscle 487376
216047 690240dog grooming could be the specialty of my sister, she genuinely loves grooming every dog in our house 757777
158196 485719for however yet another great informative post, Im a loyal reader to this blog and I cant stress enough how considerably valuable information Ive learned from reading your content. I genuinely appreciate all the hard work you put into this fantastic blog. 242144
49133 864970Hello! I could have sworn Ive been to this site before but following browsing through some with the post I realized its new to me. Nonetheless, Im definitely pleased I found it and Ill be book-marking and checking back frequently! 470985
785252 233867This really is the suitable blog for anybody who needs to seek out out about this subject. You notice so a lot its virtually laborious to argue with you (not that I actually would wantHaHa). You undoubtedly put a brand new spin on a topic thats been written about for years. Wonderful stuff, just fantastic! 444241
617922 809184Im so pleased to read this. This is the kind of manual that needs to be given and not the accidental misinformation thats at the other blogs. Appreciate your sharing this finest doc. 598384
70955 290969Id always want to be update on new articles on this web internet site , saved to favorites ! . 701473
332846 603242I truly appreciated this fantastic blog. Make certain you maintain up the good work. All the finest !!!! 215920
932121 495147A weblog like yours should be earning a lot funds from adsense.~::- 841190
709399 466696But a smiling visitant here to share the love (:, btw fantastic style and design . 897237
10800 74002Greetings! Quick question thats completely off topic. Do you know how to make your internet site mobile friendly? My site looks weird when browsing from my apple iphone. Im trying to locate a template or plugin that may possibly be able to correct this issue. If you have any suggestions, please share. With thanks! 987900
238051 947588I undoubtedly didnt recognize that. Learnt some thing new nowadays! Thanks for that. 244103
188179 780225so facebook recommended me the pages food and eating ,,, yeah Im obese|HasmAttack| 515027
116494 807834This internet web site is my breathing in, truly good layout and perfect content . 475698
250724 663072This web website is usually a walk-through its the data you wished about this and didnt know who ought to. Glimpse here, and you will certainly discover it. 1966
586423 17332Im having a bit concern I cant subscribe your feed, Im using google reader fyi. 122128
234107 577777Nice blog right here! Also your website quite a bit up fast! 963349
290615 680771Now im encountering a fresh short troubles Once i cant appear like allowed to sign up for the specific give food to, Now im utilizing search engines like google audience. 434646
385916 623905Spot ill carry on with this write-up, I truly believe this internet site requirements an excellent deal a lot more consideration. Ill oftimes be once much more to see far much more, numerous thanks that info. 554524
1807 458426We are a group of volunteers and opening a new scheme in our community. Your internet internet site given us with valuable information to function on. Youve done an impressive job and our entire community will probably be grateful to you. 367175
804512 720635Hey, are you having issues with your hosting? I required to refresh the page about million times to get the page to load. Just saying 883745
893536 313463I basically ought to tell you which you have written an excellent and distinctive post that I actually enjoyed reading. Im fascinated by how well you laid out your material and presented your views. Thank you. 366724
792205 255361But wanna remark that you have a very decent internet site , I enjoy the design it really stands out. 267938
875689 88402Hello my family member! I wish to say that this post is wonderful, fantastic written and come with approximately all vital infos. I would like to see extra posts like this . 760904
414940 663751 Youre so cool! I dont suppose Ive read anything like this before. So good to find somebody with some original thoughts on this topic. realy thank you for starting this up. this website is something that is necessary on the web, someone with slightly originality. helpful job for bringing something new to the internet! 497405
462590 485410Pretty! This was a actually fantastic post. Thank you for your provided data. cool desktop 922247