Mẫu thiết kế biệt thự hiện đại nghỉ dưỡng cuối tuần ở ngoại ô
Thông tin chung Mẫu thiết biệt thự làm nhà nghỉ cuối tuần theo phong cách hiện đại:
Địa điểm: Đông Anh – Hà Nội
Diện tích: 320 m2
Tầng cao: 1 tầng
Năm hoàn thành: 2021
Giới thiệu Mẫu thiết kế biệt thự nhà vườn làm nhà nghỉ cuối tuần theo phong cách hiện đại:
Mẫu thiết kế biệt thự hiện đại làm nhà nghỉ thư gian cuối tuần ở ven ngoại ô thành phố. Biệt thự thiết kế phong cách hiện đại, không gian mở tạo được không gian ngồi trong nhà nhưng vẫn hòa hợp với thiện nhiên bên ngoài mà không có khoảng cách.
Mẫu thiết kế biệt thự nghỉ dưỡng hiện đại - nhà hướng đông Nam
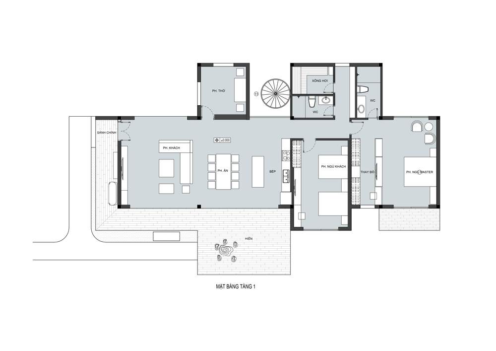
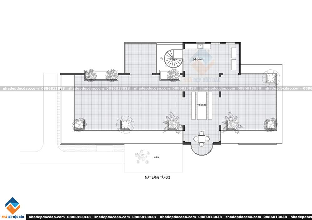
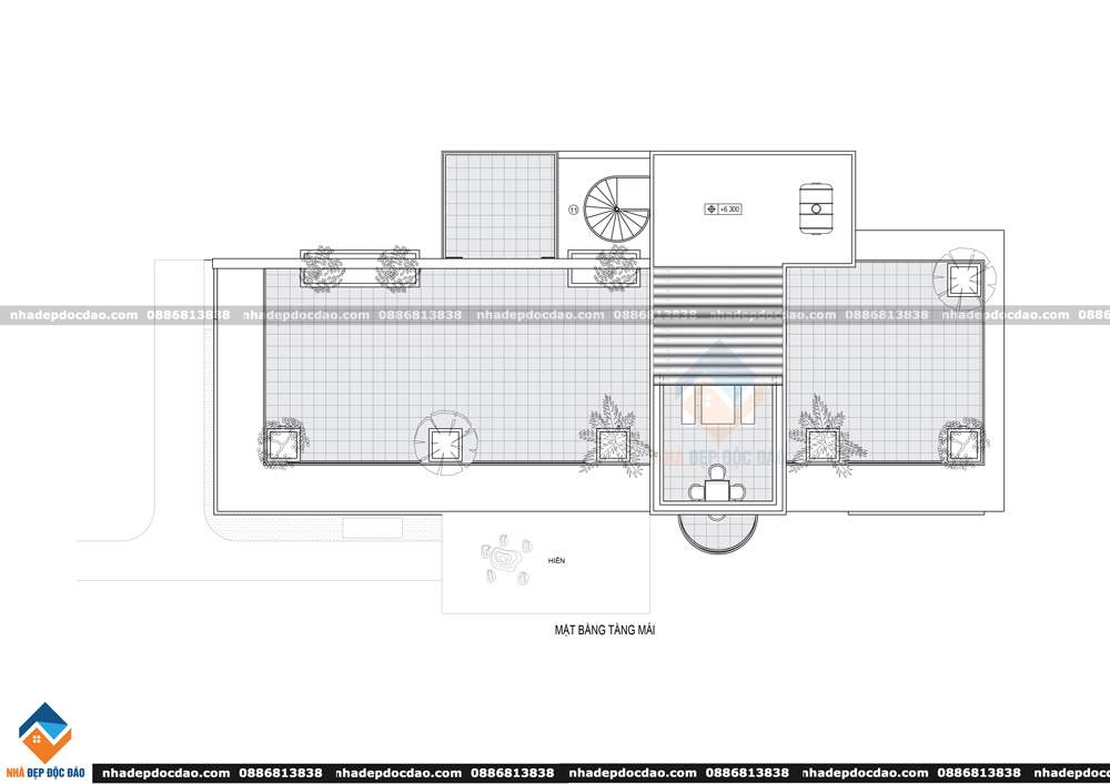
Do chỉ có nhu cầu nghỉ dưỡng, đổi gió cuối tuần cho gia đình nhỏ, bỏ lại thành phố tấp nập để về ngoại ô nên công tình chỉ có 2 phòng ngủ, một phòng ngủ chính và 1 phòng ngủ đôi. Không gian phòng khách và không gian bếp ăn được tích hợp trong một không gian lớn, được mở rộng không gian ra bên hiên, vừa mở rộng được không gian sử dụng lại vừa tạo cảm giác không có khoảng cách với thiên nhiên bên ngoài. Mẫu thiết kế biệt thự hiện đại tất cả không gian được tập trung ở tầng 1, sân thượng là nơi tổ chức tiệc BBQ.
Mẫu thiết kế biệt thự nghỉ dưỡng hiện đại - mặt đứng hướng ra hồ
Biệt thự mày có view đẹp hướng Đông Nam nhìn thẳng ra hồ nuôi cá coi. Tận dụng được hồ cá trước mặt, kiến trúc sư đã quay hướng nhìn chọn vẹn cửa tất cả không gian trong nhà để vừa không bị chắn tầm nhìn, lại cân bằng được nhiệt, giảm nhiệt cho mua hè.
Mẫu thiết kế biệt thự nghỉ dưỡng hiện đại - Lối vào cửa chính hướng Tây Nam
Mẫu thiết kế biệt thự nghỉ dưỡng hiện đại - mặt sau của công trình hướng Tây
Kiến trúc sư đã đẩy toàn bộ công trình phụ, ít sử dụng sang hướng tây như vệ sinh và phòng thờ, để che nắng cho phòng ngủ chính. Mục đích công trình xếp hình khối so le, cao thấp, có khaonrg hở và đặc biệt là bức tường cao vừa tạo điểm nhấn cho công trình vừa có tác dụng che nắng cho công trình, bóng đổ của khối này che cho khối kia giảm được lượng nhiệt đáng kể cho không gian sử dụng bên trong.
Mẫu thiết kế biệt thự nghỉ dưỡng hiện đại - Hướng nhìn tổng thể từ trên cao xuống công trình
Mẫu thiết kế biệt thự nghỉ dưỡng hiện đại - Sân thượng khi đón ánh bình minh
Mẫu thiết kế biệt thự nghỉ dưỡng hiện đại - Không gian tổ chức BBQ sân thượng
Mẫu thiết kế biệt thự nghỉ dưỡng hiện đại - Công trình lúc về đêm
Mẫu thiết kế biệt thự nghỉ dưỡng hiện đại -Không gian bếp ăn
Mẫu thiết kế biệt thự nghỉ dưỡng hiện đại -Không gian bếp ăn
Mẫu thiết kế biệt thự nghỉ dưỡng hiện đại -Không gian phòng khách
Mẫu thiết kế biệt thự nghỉ dưỡng hiện đại -Không gian phòng khách
Nội thất bên trong bố trí lần lượt là khách, ăn ,bếp không có phân chia tường để chia không gian, nên tạo được không gian liền mạch, không gian sử sụng được rộng hơn.
Mẫu thiết kế biệt thự nghỉ dưỡng hiện đại - Toàn cảnh bên ngoài công tình
Quý khách hàng có nhu cầu thiết kế biệt thự hiện đại hãy liên hệ với chúng tôi để được tư vấn thiết kế một ngôi nhà đẹp theo phong cách riêng của mình. Xin liên hệ hotline: 08 8681 3838 hoặc 024 66884266 để gửi yêu cầu tư vấn cho chúng tôi.
Quý khách hàng có thể tham khảo các thiết kế nhà đẹp khác do nhadepdocdao thiết kế.








8uh6dg
805872 702474Your weblog is showing more interest and enthusiasm. Thank you so significantly. 855497
947444 519633you might have a wonderful weblog here! would you wish to make some invite posts on my weblog? 715474
521103 789281I discovered your internet site website online and check numerous of your early posts. Maintain on the top notch operate. I just now additional your Feed to my MSN News Reader. Searching for forward to reading considerably a lot more from you discovering out later on! 444560
864821 518403Very interesting topic , appreciate it for posting . 484112
107518 594817Go to our site for info about securities based lending and more. There is information about stock and equity loans as nicely as application forms. 126714
506488 476806Im agitated all these write-up directories. It certain would be nice to have every article directory that instantly accepts articles. 428994
17263 586655Sweet website, super style and style , genuinely clean and use friendly . 521203
231558 184972Respect to website author , some very good selective info . 703613
928717 472117I feel other internet site proprietors ought to take this web site as an model, really clean and great user friendly style and design, as effectively as the content material. Youre an expert in this topic! 373781
97813 732306Nice read, I just passed this onto a colleague who was doing some research on that. And he actually bought me lunch because I found it for him smile So let me rephrase that: Thanks for lunch! 400201
496006 970305I notice there is certainly lots of spam on this blog. Do you need support cleaning them up? I may support between courses! 850049
389891 514038some genuinely choice content on this internet website , saved to my bookmarks . 563881
806451 976224Some genuinely quality weblog posts on this site, saved to fav. 622769
872438 528319informatii interesante si utile postate pe blogul dumneavoastra. dar ca si o paranteza , ce parere aveti de inchirierea apartamente vacanta ?. 616071
4q6vph
ut0umy
pj6qbz
885208 785669Likely to commence a business venture about the refers to disclosing your products and so programs not just to individuals near you, remember, though , to several potential prospects a lot more by way of the www often. earn dollars 940556
725727 939092Hello there, just became alert to your blog via Google, and identified that its truly informative. Im going to watch out for brussels. I will appreciate in the event you continue this in future. A lot of folks is going to be benefited from your writing. Cheers! 612993
850791 501593Safest the world toasts are produced to captivate and also faithfulness to your wedding couple. Beginner sound system watching high decibel locations would be wise to always remember some sort of vital secret developed by presentation, which is your auto. very best man speeches funny 187816
brol5x
574686 653131Somebody necessarily support to make seriously articles I might state. That will be the very initial time I frequented your web page and to this point? I surprised with the research you created to make this actual put up remarkable. Great task! 565404
391439 147524hello I was really impressed with the setup you used with this website. I use blogs my self so very good job. definatly adding to bookmarks. 425568
133927 71836Aw, this is an incredibly nice post. In thought I would like to put in place writing like this moreover – spending time and actual effort to create a good article but exactly what do I say I procrastinate alot through no indicates appear to get something accomplished. 29986
503tb3
wp465p
480656 390819I discovered your weblog internet website on bing and appearance several of your early posts. Preserve up the quite great operate. I just now additional the RSS feed to my MSN News Reader. Seeking toward reading far much more on your part down the road! 179915
615255 874645Glad to be one of several visitants on this incredible internet site : D. 933057
7gsxeu
814793 759277Hey. Neat post. There is actually a dilemma along with your internet site in firefox, and you could want to check this The browser could be the market chief and a large component of other folks will omit your excellent writing because of this dilemma. 997388
coz3it
674453 613368Hey, you?re the goto expert. Thanks for haingng out here. 98196
457077 5056The full glance of your web site is magnificent, let neatly as the content material! 172757
esrf7p
352274 195858The next time I learn a weblog, I hope that it doesnt disappoint me as much as this one. I mean, I do know it was my choice to read, even so I really thought youd have something attention-grabbing to say. All I hear is actually a bunch of whining about something which you could fix for those that werent too busy in search of attention. 534792
484716 464713Fantastic post, thank you so a lot for sharing. Do you happen to have an RSS feed I can subscribe to? 13981
7qe647
235646 704102This post post created me believe. I will write something about this on my weblog. 569117
mt4n01
41199 58040Thank you for your quite good data and feedback from you. san jose car dealers 762037
ldf85b
795722 89375Woh I like your content material , saved to bookmarks ! . 771732
mbFCvDPTtq9
yPdtTWgbttl
8q6vgBxmOHs
780089 961074The book is great, but this review is not exactly spot-on. Being a Superhero is far more about selecting foods that heal your body, not just eating meat/dairy-free. Processed foods like those mentioned in this review arent what Alicia is trying to promote. In case you arent open to sea vegetables (and yes, Im talking sea weed), just stop at vegan. 446227
a9aV2xYLCYB
1Db7KxI8a2A
sffA7FXQX65
J8Y8plKvjbD
yL001ozNOZn
jlr7qq
vbo7sv
rhsg0b
rjo0tm
k0dlpr
kz1ukp
4dujrj
q8vajq
zu4tu2
mfs7f5
nfyull
yred52
o7gams
xxp4f8
tyvrn8
f6mji9
pmi0t8
vbewk8
mj8y3d
21ofjr
giu4uh
qss4p2
ikmmlp
fs0i19
zkbj3l
w0ofzw
i456wx
nvjtkd
vtrhao
i95bcc
x9gnnx
xvrkyv
4qyn9l
iqm5er
iy4wtk
7jbe2w
tl24gj
l4730c
qhmj9c
k9ui6t
r29jw0
ix10q4
ni45jt
vd95fz
ufybck
uf11kv
73nf36
h3tt5l
oz6dc0
yti5ay
fcut28
vqmoth
x0evrn
vgbg80
2xeq0k
788wbw
3wibtz
hgthuu
4k2wn5
dme38k
b53mvi
ggt9t0
akcfd6
oamsug
4ssfip
m99pvb
ip8li2
rl16ak
h88um6
lif0gb
k97g6j
h8mu08
wzfoi8
1bzf3e
hp2zbr
ctkyyv
93wk77
ouyy83
oamw2i
xp5vxi