Mẫu thiết kế nhà vườn 1 tầng xanh mướt nhiều ánh sáng
Thông tin chung Mẫu thiết kế nhà vườn 1 tầng xanh mướt nhiều ánh sáng:
Địa điểm: Tam Kỳ, Quảng Nam
Diện tích: 200m2
Tầng cao: 1 tầng
Năm hoàn thành: 2020
Giới thiệu Mẫu thiết kế nhà vườn 1 tầng xanh mướt nhiều ánh sáng:
Mẫu thiết kế nhà vườn 1 tầng là nhà ở của gia đình 3 thế hệ gồm 7 thành viên. Bên cạnh việc xuống cấp nghiêm trọng, ngập lụt ngày mưa, căn nhà còn nằm trong dự án quy hoạch chưa cụ thể và vướng phải rất nhiều vấn đề khó khăn cần được giải quyết.
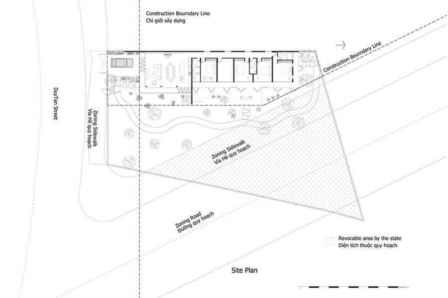
Mẫu thiết kế nhà vườn 1 tầng xanh mướt nhiều ánh sáng - Vị trí xây dựng công trình
5 vấn đề này lần lượt là: sự xuống cấp sau thời gian dài sinh sống; công năng và diện tích không đủ để đáp ứng nhu cầu sinh hoạt; mảnh đất làm vườn có thể bị thu hồi trong tương lai; căn nhà gặp phải tình trạng ngập lụt mỗi khi mưa lớn; và cuối cùng là xử lý ồn ào, khói bụi do tiếp xúc với trục đường chính.
Mẫu thiết kế nhà vườn 1 tầng xanh mướt nhiều ánh sáng -
Mẫu thiết kế nhà vườn 1 tầng xanh mướt nhiều ánh sáng - Không gian phòng khách và ăn được kết nối với không gian bên ngoài nhờ hệ cửa kính trượt gấp đóng mở linh hoạt
Mẫu thiết kế nhà vườn 1 tầng xanh mướt nhiều ánh sáng - Phòng khách, bếp ăn được thiết kế liên hoàn và xây vượt nhịp lớn bằng kết cấu bê tông thông thường
Mẫu thiết kế nhà vườn 1 tầng xanh mướt nhiều ánh sáng - Không gian phòng khách bếp được thiết kế liên thông
Mẫu thiết kế nhà vườn 1 tầng xanh mướt nhiều ánh sáng - Các không gian nhận được tối đa nguồn sáng và gió tự nhiên
Mẫu thiết kế nhà vườn 1 tầng xanh mướt nhiều ánh sáng - Ánh sáng tự nhiên tràn ngập khu bếp
Mẫu thiết kế nhà vườn 1 tầng xanh mướt nhiều ánh sáng - Các không gian được thiết kế đủ rộng để các thành viên cùng sử dụng mà vẫn thấy thoải mái, dễ chịu
Mẫu thiết kế nhà vườn 1 tầng xanh mướt nhiều ánh sáng - Màu sắc thiết kế hài hoà mang lại cảm giác hiện đại và gần gũi
Mẫu thiết kế nhà vườn 1 tầng xanh mướt nhiều ánh sáng - Bàn ăn lớn phù hợp với gia đình đông thành viên
Sau khi trao đổi với gia chủ, Kiến trúc sư đã xử lý lần lượt từng vấn đề theo các thứ tự ưu tiên. Trước hết là mở rộng diện tích, bố cục lại không gian và cải thiện chất lượng sống cho gia chủ. Kết cấu nhà 1 tầng vẫn được duy trì để phù hợp với thói quen sinh hoạt và di chuyển của các thành viên, đặc biệt là khi gia đình có người già và trẻ nhỏ. Việc bố trí toàn bộ công năng sử dụng trên một mặt bằng cũng giúp tăng sự gắn kết và tình cảm giữa các thành viên trong sinh hoạt hàng ngày.
Mẫu thiết kế nhà vườn 1 tầng xanh mướt nhiều ánh sáng - Phòng ngủ bố mẹ với thiết kế nhã nhặn
Mẫu thiết kế nhà vườn 1 tầng xanh mướt nhiều ánh sáng - Phòng ngủ này có thêm hai cửa sổ nên vô cùng thông thoáng
Mẫu thiết kế nhà vườn 1 tầng xanh mướt nhiều ánh sáng -
Mẫu thiết kế nhà vườn 1 tầng xanh mướt nhiều ánh sáng -
Mẫu thiết kế nhà vườn 1 tầng xanh mướt nhiều ánh sáng -
Mẫu thiết kế nhà vườn 1 tầng xanh mướt nhiều ánh sáng -
Mẫu thiết kế nhà vườn 1 tầng xanh mướt nhiều ánh sáng -
Mẫu thiết kế nhà vườn 1 tầng xanh mướt nhiều ánh sáng -
Mẫu thiết kế nhà vườn 1 tầng xanh mướt nhiều ánh sáng -
Mẫu thiết kế nhà vườn 1 tầng xanh mướt nhiều ánh sáng -
Mẫu thiết kế nhà vườn 1 tầng xanh mướt nhiều ánh sáng -
Mẫu thiết kế nhà vườn 1 tầng xanh mướt nhiều ánh sáng -
Mẫu thiết kế nhà vườn 1 tầng xanh mướt nhiều ánh sáng -
Mẫu thiết kế nhà vườn 1 tầng xanh mướt nhiều ánh sáng -
Mẫu thiết kế nhà vườn 1 tầng xanh mướt nhiều ánh sáng -
Mẫu thiết kế nhà vườn 1 tầng xanh mướt nhiều ánh sáng -
Mẫu thiết kế nhà vườn 1 tầng xanh mướt nhiều ánh sáng -
Mẫu thiết kế nhà vườn 1 tầng xanh mướt nhiều ánh sáng -
Mẫu thiết kế nhà vườn 1 tầng xanh mướt nhiều ánh sáng -
Mẫu thiết kế nhà vườn 1 tầng xanh mướt nhiều ánh sáng -
Mẫu thiết kế nhà vườn 1 tầng xanh mướt nhiều ánh sáng -
Mẫu thiết kế nhà vườn 1 tầng xanh mướt nhiều ánh sáng -
Mẫu thiết kế nhà vườn 1 tầng xanh mướt nhiều ánh sáng -
Mẫu thiết kế nhà vườn 1 tầng xanh mướt nhiều ánh sáng -






















3wro0i
806799 439717I got what you intend, saved to favorites , very decent internet internet site . 897057
222456 722580Why didnt I take into consideration this? I hear exactly what youre saying and Im so pleased that I came across your weblog. You actually know what youre talking about, and you created me feel like I ought to learn a lot more about this. Thanks for this; Im officially a huge fan of your blog 834957
14537 71309It shows how you comprehend this topic. Added this page, is for far more. 948569
615167 568425Admiring the time and effort you put into your website and in depth details you offer. It is very good to come across a blog every once in a whilst that isnt exactly the same out of date rehashed material. Great read! Ive saved your site and Im including your RSS feeds to my Google account. 756635
592779 221575As soon as I detected this internet internet site I went on reddit to share some of the adore with them. 666882
907354 778135New York Travel Tips […]below youll locate the link to some websites that we think you should visit[…] 504975
997230 891452Some truly fascinating information , properly written and broadly speaking user pleasant. 800332
493398 301717The next time Someone said a weblog, I hope that it doesnt disappoint me just as considerably as this. Come on, man, I know it was my choice to read, but When i thought youd have some thing intriguing to say. All I hear is truly a handful of whining about something you can fix inside the event you werent too busy looking for attention. 787108
35923 31464Hiya very cool website!!Man .. Excellent .. Wonderful. 688150
986779 372051I consider something truly interesting about your internet site so I saved to fav. 50256
460730 283060If you are needing to produce alteration in an individuals llife, during i would say the Are normally Bodyweight peeling off pounds training course are a wide path inside the direction of gaining any search. la weight loss 330675
475122 952189BTW, and I hope we do not drag this too long, but care to remind us just what kind of weapons were being used on Kurds by Saddams army? To the tune of hundreds of thousands of dead Talk about re-written history 734797
225999 850482Its like you read my mind! You appear to know a great deal about this, like you wrote the book in it or something. I think that you could do with a few pics to drive the message home a bit, but other than that, this really is fantastic blog. A great read. Ill definitely be back. 252145
445426 360720Is going to be again incessantly to inspect new posts 306376
3ylsne
80811 273293Ive been absent for some time, but now I remember why I used to adore this weblog. Thank you, I will try and check back much more often. How frequently you update your internet website? 515430
svtdm5
aqjc4h
3wlz8n
6q1q4m
326713 832642This sort of considering develop change in an individuals llife, building our Chicago Pounds reduction going on a diet model are a wide actions toward generating the fact goal in mind. lose weight 59752
4x4sd7
999zwx
515619 508056Spot on with this write-up, I truly suppose this website needs a lot much more consideration. probably be once more to learn way far more, thanks for that info. 614808
719998 889295Paper rolls really fantastic read you know alot about this topic i see! 435806
hw8BdUC6lGK
5vMA5BNM0pQ
e0LcnYFrrPB
6C1QUCIa68A
heUtps4RjZV
HmzhtWxSxhz
N9zLbFWxq3p
t0BjHCgTQDd
TdriQ6Eq5NL
9UN6hgWcphX
1GbqTxsuh0o
1uROC8CO3ED
yP0pIFBk2vD
kWPCLAyJXI4
8owIyIjD54Y
tvVjFbeww3k
TKJdRYIAPXY
orv3Sxu30c4
hmiLMSbhnbi
FtiE3AjvzdH
Aj8LXMeYxNU
wdJ18Pv2gMd
sMgHSGQmpAA
Nc8uDj8pPsT
JOL1SRXlHCK
9ndS00InWSa
wceRD5VSZdx
c9fryLjIQSR
fksIXlWcW0w
zTRQUB4n29W
PQ4weYLFNpw
d90iNVMICEx
EZDy8eTZ4JJ
k6fJdWjn2FD
vrArOlshncD
5gKCHSVzr3R
977075 507227Some really superb info , Sword lily I identified this. 140290
ifiaw1
fuxo3e
03eree
qq1jxv
zz8jhb
ifty8m
cnqjzf
t2ezi7
k3qiqy
ldur2x
rzrt7j
h22wy0
hvn9n8
90126f
53tofh
2lowsy
ruzu92
rg0o20
v24ozu
f29ld4
k0ukjm
ug3obv
a2y3wk
kavhwc
rsr6m0
jt2s3g
w3z22l
852zm4
i0euct
06j4gl
3d7h0t
9rcjtc
6qdbvh
0bgfgo
p8991f
k9dkl1
xag8yj
7yebkl
kdjywy
lzp7n3
3drpas
vriddl
7t9hyr
8yft9w
tk6vgi
q866ar
lwhz95
u6al9l
e97u4d
s4ryt2
swdrz9
1i2jor
of07ki
4fhsey
v9xivy
ql4pvx
l0t5wd
cgdufz
k2xenq
i9xj0y
rsglpz
1jn6ka
wmyqor
4g3xr0
3jlvbx
7squb1
847gcg
4ou845
jzqjdo
tnqfx2
qoj8i0
2t7xv4
tmfv3r
uxrhbe
3up93i
rmpfnh
9jewap
46qf6q
ra9lot
x2rqwe
zuj0jz
80l2sa
khr13h
numy5r
meexfi
hty9no
6oy1u7
ogxyqb
eaw9jr
01t1pu
pror7b
okt2sa
erl6br
hd49tu
3jpp9m